10asw 10 DSP 10-60 10-80 10-150 20

Bauplan Sub10-150 und Sub10-80

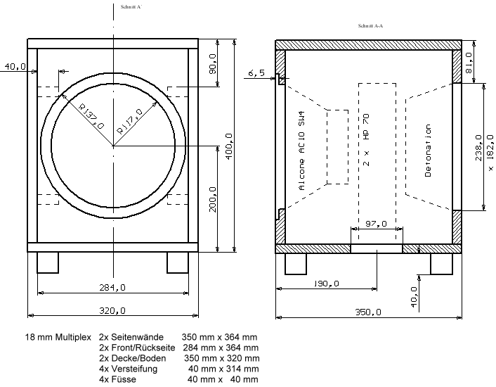
das Gehäuse und der Zusammenbau

Der Sub 10 besteht aus 6 Seitenflächen und innen 4 Stützhölzern. Die Stützhölzer vermindern die Eigenschwingungen der Holzes. Die 10 Teile werden verleimt (und ggf. geschraubt). Anschließend - oder nach Wahl auch zuvor - werden die 3 Löcher für
- den Tieftonlautsprecher,
- das Verstärkermodul,
- die Bassreflexöffnung, unten
erstellt.
Alcone Sub 10
Anschließend sind die Füße zu montieren. Der Abstand zum Boden stimmt den Lautsprecher ab, da er die Verlängerung des Bassreflexrohres darstellt. Wollen Sie den Sub 10-150 bzw. Sub 10-80 nahe einem Raum-Eck aufstellen, so dürfen die Füße ca. 5 mm kürzer sein.

die Bassreflexabstimmung

Sub 12 von unten Um den Lautsprecher sehr tief abstimmen zu können, wird ein langes Bassreflexrohr benötigt. Dies wird durch die mitgelieferte zwei aneinander gesetzte HP70-Rohre erstellt. Wir empfehlen das erste Rohr von unten einzubauen und das zweite dann nach Einbau des ersten Rohres durch die Tieftöneröffnung anzukleben (Textilklebeband, Kunststoffkleber, ...).

Das zusammengesetzte BR-Rohr wird dann noch mit Nadelfilz 1 x umwickelt, den man mit den Kabelbindern befestigt.

Der Rest des Nadelfilzes wird auf den Boden der Box um das Bassreflexrohr gelegt. Der Rest ist relativ einfach: das Subwoofermodul montieren, später den Tieftonlautsprecher da man jetzt im ausgebauten Zustand leichter die Kabel anklemmen kann. Dazu ist der Steckkontakt der DT 150 (DT80) (am rot/schwarzen Kabel) ganz zusammen zu drücken, oder einfach abzuschneiden.

Zuletzt den Tieftonlautsprecher einbauen.

Der DT150 (bei Sub10-80: der DT80) ist in seinen Tiefbasseigenschaften einstellbar. Probieren Sie es jedoch zuerst mit der Werkseinstellung, die neutral ist. Sie ist für Tiefbass und hohe Lautstärkepegel nach unserer Erfahrung die beste Einstellung.

Inbetriebnahme

Jetzt den Subwoofer an Ihrem Verstärker anschließen (Cinch-Kabel an Vorverstärkerausgang oder mit Lautsprecherkabel an Ihre Boxen/Satelliten anschließen) und das Netzkabel in die Steckdose ....

Nun wünschen wir Ihnen viel Freude mit einem ganz fantastischen Subwoofer! - und wenn es irgend einen offenen Punkt gibt: Bitte anrufen Tel: 0721-9703724.

zur Sub 10-80-Beschreibung zur Sub 10-150-Beschreibung

zum Subwoofer Sub 10-80
zum Subwoofer Sub 10-150