Angara, Standlautsprecher   in K+T 5/2011 , jetzt neue Version PA (Papier)

Angara ist ein Standlautsprecher der dem reproduzierten Signal nichts hinzu fügt oder weg lässt. Angara bedeutet Musik hören auf höchstem Niveau.   
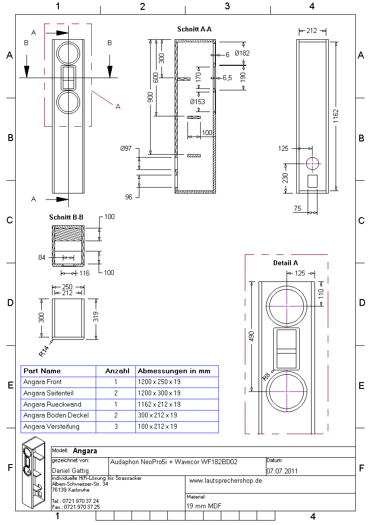
technische Daten:
- Impedanz: 4 Ohm
- Kennschalldruck (2,83V/1m): 87 dB
- Maße (HxBxT): 1200 x 250 x 319 mm
- Frequenzbereich (-8dB): 30 - 42000 Hz
- Trennfrequenz(en): Hz
- Prinzip: Bassreflexbox

Wenn man auf lange Sicht mit einem Lautsprecher Musik hören will, Musik die man auch aus Liveaufnahmen kennt, dann sollte der Lautsprecher dem reproduzierten Signal nichts hinzu fügen. Das findet man bei Angara.

Dazu wurde einer der besten Hochtöner ausgewählt, die auf dem Markt verfügbar sind (Zeitschrift K+T "einem der Traumhochtöner schlechthin") das Audaphon Bändchen Neo Pro 5i. Dies wird von zwei Mitteltieftöner begleitet, die absolut nach Stand der Technik produziert wurden: Wavecors WF 182 BD 02.

Die Frequenzweiche steuert die Tieftöner mit einer Steilheit von 12 dB/Oktave an. Der Hochtöner wird durch einen Hochpass mit 18 dB/Oktave angesteuert. Zur Unterdrückung weniger verbliebener Resonanzen gibt es noch Saugkreise im Tiefpass und einen im Hochpass.

Der Frequenzgang der Box ist sehr eben; um den Wirkungsgrad von 88 dB schwankt er kaum um 1 dB. Wer den Frequenzgang um 2-3 kHz noch etwas ebener wünscht, schrägt die vorderen Kanten des Gehäuses ab. Das Zerfallsspektrum (Wasserfall) ist sehr gutmütig, das Rundstrahlverhalten ist durch das Bändchen absolut excellent. Die nichtlinearen Verzerrungen sind gering.

Da es Angara mangels Wavecor Tieftöner mit Nomexmenbran nicht mehr gibt, bieten wir hier Angara mit Wavecor WF182BD04 an.

Ein Ausschnitt aus dem Klang+Ton Hörtest der "alten" Angara

... "Zu Beginn dieses Artikels habe ich von der hohen Kunst der Unauffälligkeit geschrieben. Und genau das trifft auch auf den Klang der Angara zu. In erster Instanz gibt es nämlich nichts, was den Hörer zur genaueren Betrachtung zwingt - so neutral ist der Lautsprecher abgestimmt. Lässt man sich eine Weile auf das unspektakuläre Klangbild ein, dann lernt man den sehr profunden und dabei beeindruckend schnellen Bass zu schätzen, der in seiner Trockenheit fast schon am Thron des einen oder anderen großen PA-Tieftöners rüttelt (mit Ausnahme absoluter Pegelreserven, natürlich). Die Tiefmitteltöner machen auch in Sachen Stimmenwiedergabe einen mehr als ordentlichen Job - zwei Achtzehner verleihen einem Sänger schon einen richtig ordentlichen Brustkorb, nichts klingt gequetscht oder quengelig. Natürlich setzt das große Audaphon-Bändchen in Sachen Offenheit noch einen drauf: Wunderbar leicht und luftig musiziert es über gewaltige viereinhalb Oktaven - holt mühelos Details aus jeder Musikkonserve. Hatte ich aufgrund der Abstimmung etwas Bedenken wegen des Hochtonpegels, so konnte der Gesamtauftritt diese locker zerstreuen. Durch die starke vertikale Bündelung des langen Bändchens spielen Decken- und Bodenreflexionen kaum eine Rolle, so dass erstens der Gesamtpegel im Raum absolut richtig ist und zweitens eine fast schon hornartige räumliche Abbildung gelingt. So perfekt freigestellt werden gut aufgenommene Sänger und Instrumente. Die Angara ist eine Box, bei der kein Bereich, kein Bestandteil sich auf Kosten eines anderen in den Vordergrund spielt. Auf der anderen Seite kann man lange und vergeblich nach irgend etwas suchen, das fehlen würde - so ist eine Box entstanden, wie sie alltagstauglicher und endgültiger kaum sein könnte."

Das Fazit aus Zeitschrift Klang+Ton

"Hochwertige Treiber verbauen kann jeder - eine perfekt aufeinander abgestimmte Kombination zu erschaffen, bei dem alle Elemente ideal zusammenspielen, das ist die hohe Kunst. Kompliment an die Angara und ihren Erbauer!"

Unser Bausatz Angara Papier besteht aus

  • Audaphon Ribbon NeoPro5i, Alu, schwarz
  • 2x Wavecor Mitteltieftöner WF182BD04, 8 Ohm
  • Bassreflexrohr HP70, 70x220mm, schwarz
  • 3x Dämmmaterial aus Polyesterwatte, 125 g für 20L Volumen
  • Biwiring Terminal T122 Au mit vergoldeten Messingklemmen
  • 3m Lautsprecherkabel 2x1,5 mm2, transparent
  • PE-Dichtstreifen, 5x2 mm
  • Pan-Schrauben 3,5x17 schwarz, 4 Stück
  • Inbus-Holzschrauben 4x25mm, sw. 18 Stück
  • Bauplan für den Bausatz

den Frequenzweichenbauteilen (rechts),
auf einem Holzbrettchen aufzubauen.

  • Audaphon MKP CAP Superior 2,2 μF / 400 Vdc
  • Audaphon MKP CAP Superior 2,7 μF / 400 Vdc
  • Audaphon MKP CAP Superior 3,9uF / 400 Vdc
  • Audaphon MKP CAP Superior 5,6 μF / 400 Vdc
  • Audaphon MKP CAP Superior 10 μF / 400 Vdc
  • Audaphon MKP CAP Superior 15 μF / 400 Vdc
  • 0,7 mm Mundorf Luftspule, 0,068 mH
  • 2x 0,7 mm Mundorf Luftspule, 0,47 mH/0,57 Ohm
  • 0,7 mm Mundorf Luftspule, 4,7 mH/2,39 Ohm
  • 1,4 mm Mundorf Luftspule, 1,2 mH/0,33 Ohm
  • 3x Metalloxidwiderstand MOX10 2,2 Ohm (rot-rot-gold)
  • Metalloxidwiderstand MOX10 8,2 Ohm (grau-rot-gold)
  • Metalloxidwiderstand MOX10 12 Ohm (braun-rot-schwarz)

Bausatz ohne Gehäuse, Preis pro Lautsprecher - nicht lieferbar

Preis für ein Paar kundenspezifische Lautsprecher mit beliebiger Farbe - nicht lieferbar

Falls Sie die Frequenzweiche lieber auf einer 159 x 127 mm Raster-Leiterplatte statt auf Holz aufbauen wollen:
Leiterplatte RA160, Best.-Nr. str-RA160, Preis pro Stück: EUR 5,92 ohne MwSt: € 4.97 / $ 5.72
Pro Bausatz empfehlen wir eine Platte (für ein Paar Lautsprecher also 2)

 

Bausatz mit High-End-Weiche

Unsere High-End-Weiche enthält anstelle von hochwertigen Audaphon-Kondensatoren in der Standardversion in der High-End-Version ClarityCaps. Ganz besonders sind hier die sehr hochwertigen MR-Tyen in Reihe zu dem Air Motion Transformer zu sehen. In Reihe zu den Tieftonlautsprechern kommt eine Kupferfolienspule zum Einsatz; ansonsten finden durchweg Luftspulen (meist Backlackspulen) Verwendung:

  • ClarityCap MR Kondensator 5,6 μF / 630 Vdc
  • ClarityCap MR Kondensator 15 μF / 630 Vdc
  • ClarityCap PWA Kondensator 2,2 μF / 400 Vdc
  • ClarityCap PWA Kondensator 2,7 μF / 400 Vdc
  • ClarityCap PWA Kondensator 3,9 μF / 400 Vdc
  • ClarityCap PWA Kondensator 10 μF / 400 Vdc
  • Mundorf Folienspule CFC14-1,2mH/0,26Ohm
  • 0,7 mm Mundorf Luftspule, 0,068 mH
  • 2x 0,7 mm Mundorf Backlack-Luftspule, 0,47 mH/0,57 Ohm
  • 0,7 mm Mundorf Backlack-Luftspule, 4,7 mH/2,39 Ohm
  • 3x Metalloxidwiderstand MOX10 2,2 Ohm (rot-rot-gold)
  • Metalloxidwiderstand MOX10 8,2 Ohm (grau-rot-gold)
  • Metalloxidwiderstand MOX10 5,6 Ohm (grün-blau-gold)

Bausatz mit High-End-Weiche ohne Gehäuse, Preis pro Lautsprecher - nicht lieferbar

Falls Sie die Frequenzweiche lieber auf einer 240 x 165 mm Rasterplatte statt auf Holz aufbauen wollen:
Rasterplatte RA240, Best.-Nr. str-RA240, Preis pro Stück: EUR 8,60 ohne MwSt: € 7.23 / $ 8.31
Pro Bausatz empfehlen wir eine Platte (für ein Paar Lautsprecher also 2)

Impedanzkorrektur

 Falls der Lautsprecher an einem Röhrenverstärker betrieben werden soll, dann sollte eine Impedanzkorrektur zum Einsatz kommen. Hier spielt die Bauteilqualität nur eine geringe Rolle, weswegen wir nur einen Bausatz anbieten (auf Wunsch erhalten Sie selbstverständlich auch höherwertige Bauteile).

Zur Impedanzkorrektur liefern wir folgende Bauteile:

  • Elko glatt, 33uF / 70 Vdc
  • audaphon Luftspule L7, 0,39 mH/0,49 Ohm
  • Metalloxidwiderstand MOX10 4,7 Ohm (gelb-violett-gold)

Preis pro Impedanzkorrektur für eine Box auf Holz aufzubauen EUR 15,90 ohne MwSt: € 13.36 / $ 15.37

Bauplan

 

zur Klang- und Ton-Übersicht